1708-01.jpg
       
     
 Punktwolke - Untergeschoss
       
     
 Punktwolke - Erdgeschoss
       
     
 Punktwolke - 1. Obergeschoss
       
     
 Punktwolke - 2. Obergeschoss
       
     
 Punktwolke - 1. Dachgeschoss
       
     
 Punktwolke - 2. Dachgeschoss
       
     
 Punktwolke - Schnitt
       
     
 Punktwolke - Schnitt
       
     
 Bei möblierten Liegenschaften ist die Interpretation der Punktwolkedaten zeitaufwendig
       
     
 Aussenfassade - Punktwolke
       
     
 Aussenfassade - Modell
       
     
 Aussenfassade - Modell
       
     
 Aussenfassade - Modell
       
     
 Aussenfassade - Texturatlas
       
     
 Aussenfassade - Modell texturiert
       
     
 Untergeschoss
       
     
 Untergeschoss - Höhenschnitte
       
     
 Untergeschoss - Punktwolke
       
     
 Erdgeschoss
       
     
 Erdgeschoss - Höhenschnitte
       
     
 Erdgeschoss - Punktwolke
       
     
 1. Obergeschoss
       
     
 1. Obergeschoss - Höhenschnitte
       
     
 1. Obergeschoss - Punktwolke
       
     
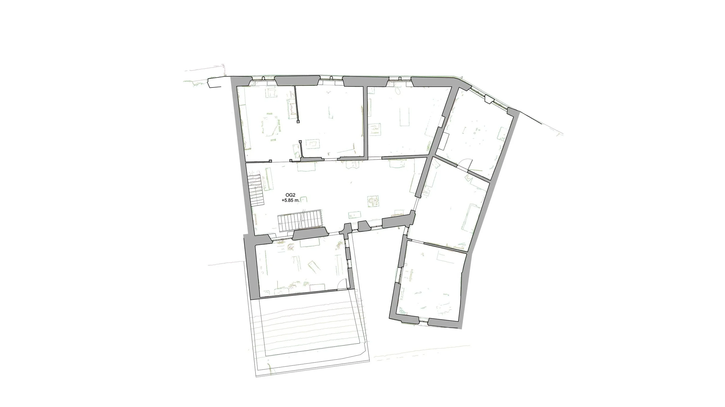
 2. Obergeschoss
       
     
 2. Obergeschoss - Höhenschnitte
       
     
 2. Obergeschoss - Punktwolke
       
     
 1. Dachgeschoss
       
     
 1. Dachgeschoss - Höhenschnitte
       
     
 1. Dachgeschoss - Punktwolke
       
     
 2. Dachgeschoss
       
     
 2. Dachgeschoss - Höhenschnitte
       
     
 2. Dachgeschoss - Punktwolke
       
     
 Längsschnitt
       
     
 Querschnitt
       
     
 Innenfassaden
       
     
 Strassenfassade
       
     
1708-01.jpg
       
     
 Punktwolke - Untergeschoss
       
     

Punktwolke - Untergeschoss

 Punktwolke - Erdgeschoss
       
     

Punktwolke - Erdgeschoss

 Punktwolke - 1. Obergeschoss
       
     

Punktwolke - 1. Obergeschoss

 Punktwolke - 2. Obergeschoss
       
     

Punktwolke - 2. Obergeschoss

 Punktwolke - 1. Dachgeschoss
       
     

Punktwolke - 1. Dachgeschoss

 Punktwolke - 2. Dachgeschoss
       
     

Punktwolke - 2. Dachgeschoss

 Punktwolke - Schnitt
       
     

Punktwolke - Schnitt

 Punktwolke - Schnitt
       
     

Punktwolke - Schnitt

 Bei möblierten Liegenschaften ist die Interpretation der Punktwolkedaten zeitaufwendig
       
     

Bei möblierten Liegenschaften ist die Interpretation der Punktwolkedaten zeitaufwendig

 Aussenfassade - Punktwolke
       
     

Aussenfassade - Punktwolke

 Aussenfassade - Modell
       
     

Aussenfassade - Modell

 Aussenfassade - Modell
       
     

Aussenfassade - Modell

 Aussenfassade - Modell
       
     

Aussenfassade - Modell

 Aussenfassade - Texturatlas
       
     

Aussenfassade - Texturatlas

 Aussenfassade - Modell texturiert
       
     

Aussenfassade - Modell texturiert

 Untergeschoss
       
     

Untergeschoss

 Untergeschoss - Höhenschnitte
       
     

Untergeschoss - Höhenschnitte

 Untergeschoss - Punktwolke
       
     

Untergeschoss - Punktwolke

 Erdgeschoss
       
     

Erdgeschoss

 Erdgeschoss - Höhenschnitte
       
     

Erdgeschoss - Höhenschnitte

 Erdgeschoss - Punktwolke
       
     

Erdgeschoss - Punktwolke

 1. Obergeschoss
       
     

1. Obergeschoss

 1. Obergeschoss - Höhenschnitte
       
     

1. Obergeschoss - Höhenschnitte

 1. Obergeschoss - Punktwolke
       
     

1. Obergeschoss - Punktwolke

 2. Obergeschoss
       
     

2. Obergeschoss

 2. Obergeschoss - Höhenschnitte
       
     

2. Obergeschoss - Höhenschnitte

 2. Obergeschoss - Punktwolke
       
     

2. Obergeschoss - Punktwolke

 1. Dachgeschoss
       
     

1. Dachgeschoss

 1. Dachgeschoss - Höhenschnitte
       
     

1. Dachgeschoss - Höhenschnitte

 1. Dachgeschoss - Punktwolke
       
     

1. Dachgeschoss - Punktwolke

 2. Dachgeschoss
       
     

2. Dachgeschoss

 2. Dachgeschoss - Höhenschnitte
       
     

2. Dachgeschoss - Höhenschnitte

 2. Dachgeschoss - Punktwolke
       
     

2. Dachgeschoss - Punktwolke

 Längsschnitt
       
     

Längsschnitt

 Querschnitt
       
     

Querschnitt

 Innenfassaden
       
     

Innenfassaden

 Strassenfassade
       
     

Strassenfassade