Punktwolken
       
     
 aufbereiteten Punktwolken für die Grundrisse
       
     
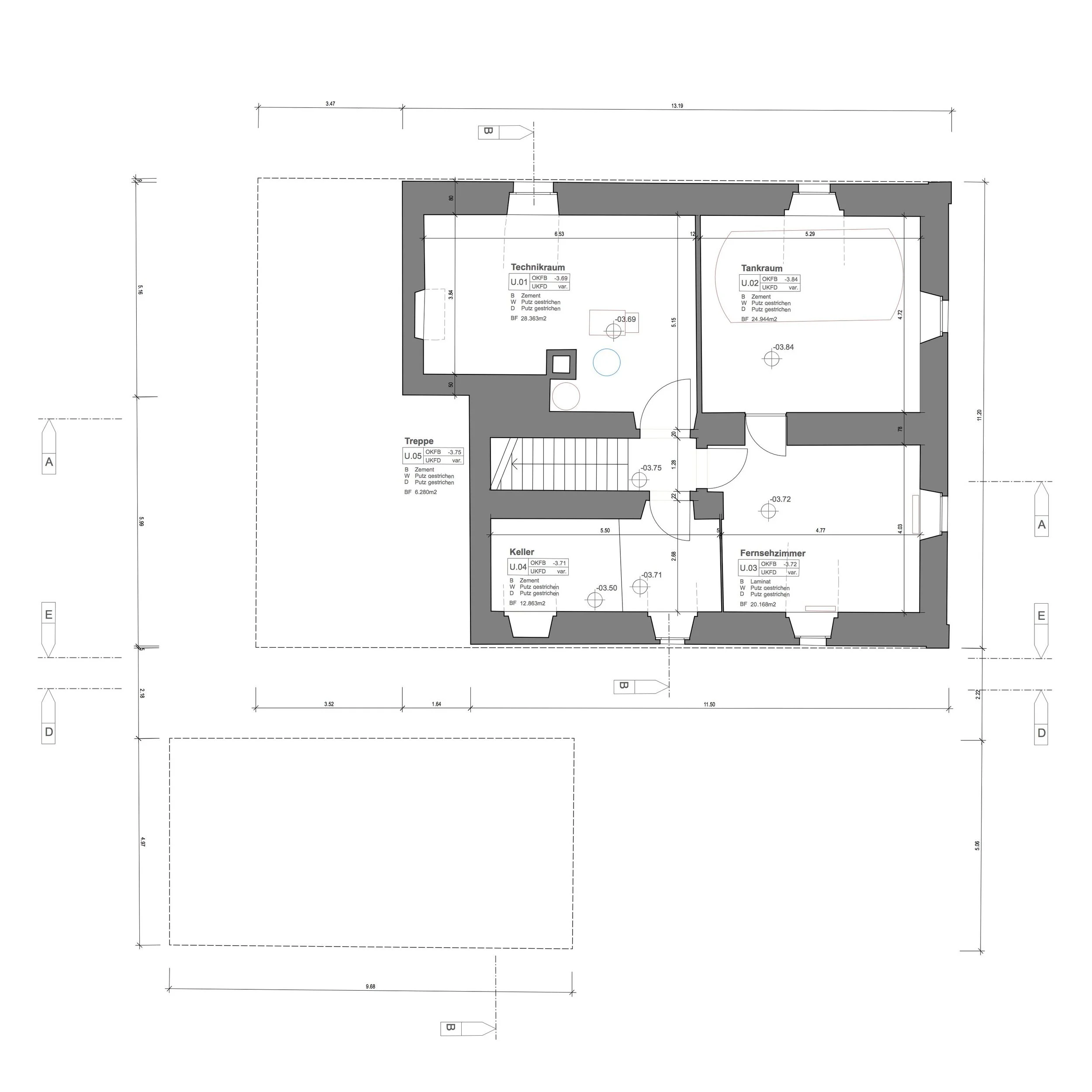
 Grundriss UG
       
     
 Grundriss EG
       
     
 Grundriss OG
       
     
 Grundriss DG
       
     
 Grundriss DG2
       
     
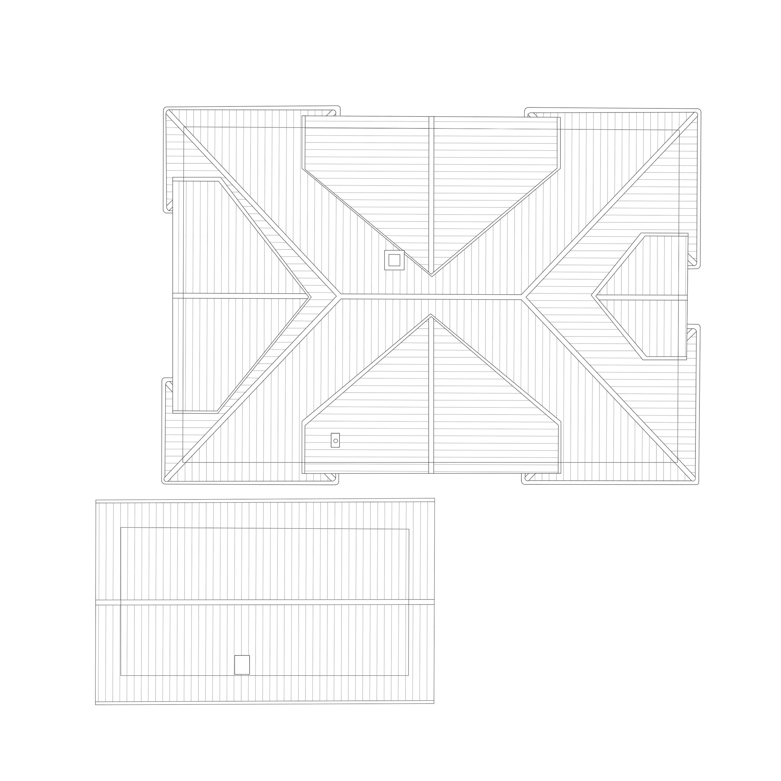
 Dachaufsicht
       
     
 Längsschnitt
       
     
 Querschnitt
       
     
 Fassade und Schnitt durch den Schopf
       
     
 Fassade West
       
     
 Fassade Ost - Schopf
       
     
 Fassade Ost
       
     
 Fassade Süd
       
     
 Fassade West mit Schopf
       
     
 Fassaden Nord
       
     
 Punktwolken
       
     

Punktwolken

 aufbereiteten Punktwolken für die Grundrisse
       
     

aufbereiteten Punktwolken für die Grundrisse

 Grundriss UG
       
     

Grundriss UG

 Grundriss EG
       
     

Grundriss EG

 Grundriss OG
       
     

Grundriss OG

 Grundriss DG
       
     

Grundriss DG

 Grundriss DG2
       
     

Grundriss DG2

 Dachaufsicht
       
     

Dachaufsicht

 Längsschnitt
       
     

Längsschnitt

 Querschnitt
       
     

Querschnitt

 Fassade und Schnitt durch den Schopf
       
     

Fassade und Schnitt durch den Schopf

 Fassade West
       
     

Fassade West

 Fassade Ost - Schopf
       
     

Fassade Ost - Schopf

 Fassade Ost
       
     

Fassade Ost

 Fassade Süd
       
     

Fassade Süd

 Fassade West mit Schopf
       
     

Fassade West mit Schopf

 Fassaden Nord
       
     

Fassaden Nord